Property Card [Code: 088]

 

SALE [Code: 088]   Indipendent House

Via Mameli, Ispica (RG)

€ 135.000


LOCALS
100 m2
SURFACE

ROOMS

BATH

Description

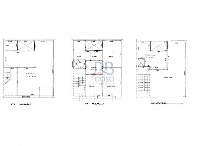
🏡 On Via Mameli in Ispica, we offer a detached house on three levels that combines solidity, space, and a truly evocative view. A solution designed for those who desire independence, comfortable living spaces, and the freedom to enjoy their home without compromises. In the basement, there's a generous 90 square meter garage, a significant added value: ideal as a garage, storage space, or a multipurpose area for hobbies and work. Going up to the mezzanine floor, you'll find the 90 square meter main residence, well-organized and bright. Here, the rooms are welcoming and functional: an eat-in kitchen, perfect for everyday life, a living room, a place to relax, a double bedroom, a single bedroom, a bathroom with shower, and a convenient laundry room that makes managing the home even more convenient. The first floor offers additional space with a 25 sq m stairwell and storage area, but above all, it captivates with a splendid walkable terrace of approximately 70 sq m ☀️. From here, the view opens onto a magnificent view of the Convent of Jesus ⛪, a setting that makes every outdoor moment special, ideal for summer dinners, relaxation, or simply enjoying the view 🌄 The property, built in the 1970s, is in good overall condition, solid and ready to move into, with excellent potential for customization. The large size, complete independence, and location make this home a solid and attractive proposition, perfect for families or those seeking a residence with character 📈 A house that offers plenty of space. Must see, must live. 💙

Features

 

 Property Type:  Entire Property

 Bedrooms:   2

 Bathrooms:   1

 Garage meters:   90

 State: Good-Habitable

 External Fixtures:   Glass/Metal

 Class:  Middle

 Exposure:  External

 Exposure side: Sud

 Air Conditioning:  Absent

 Type Air Conditioning:  

 Kitchen type:  Habitable

 Energy Rating:  

Balcony, Cellar, Independent entrance, Terrace, Views.

Contact us for more information about the property

Name and surname
E-mail
Phone
Message